21.03.22
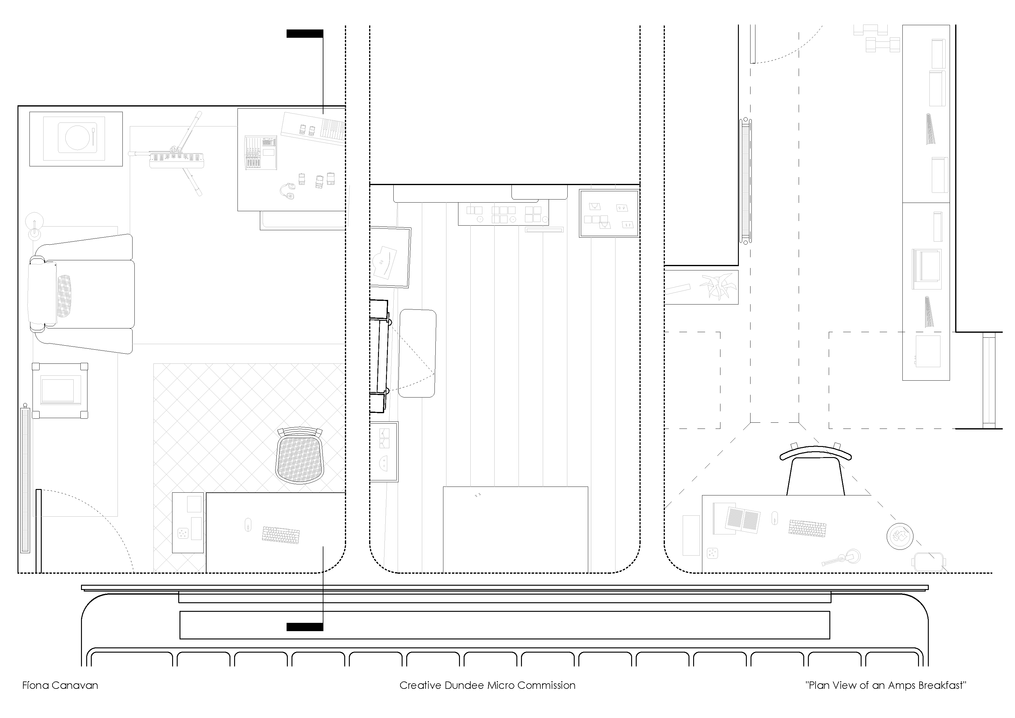
Fíona Canavan is an architect who is passionate about bringing architecture and the built environment to a wider audience. Her piece for this project highlights how Breakfast can create a little window into other people’s workspaces, resulting in 2D architectural drawings that look through the screen into the rooms other Amps inhabit while they work.
“Each Tuesday at 9am we get a small window into the homes and studios of every Amp, catching a snapshot of their work and life. I asked a few Amps to share a little more of the space they come to the Breakfasts from in order to describe it in a 2D drawing.”

To mark the two year milestone of meeting online each week since March 2020, we asked some Amps to create a piece of work that both reflects their practice and celebrates building community, forming connections, and the joy of Amps Breakfast!
This blog is one of several celebrating Two Years of Virtual Amps Breakfasts. Breakfast is a weekly opportunity that brings together supporters of Creative Dundee’s Amps network to chat and connect. New faces are always welcome—join Amps and come along!

If you would like to support us in creating even better content, please consider joining or supporting our Amps Community.