21.03.22
To mark the two year milestone of meeting online each week since March 2020, we invited some Amps to create a piece of work that both reflects their practice and celebrates building community, forming connections, and the joy of Amps Breakfast!
We left the direction of each person’s response in their hands, creating space for them to play, explore and do what they do best whilst capturing the spirit of Breakfast—resulting in the wonderfully diverse works you’ll see collated here. They also shared a generous insight into their approach through words, sketches, process photos and videos, providing a peek into the work that goes into their individual practices.
A huge thank you to everyone for their time and care in creating a response to these micro-commissions. The network is what it is thanks to the open and collaborative nature of all involved, and we’re so grateful to all Amps for helping shape this incredible community.

A multi-coloured woven cloth for the age of technology.

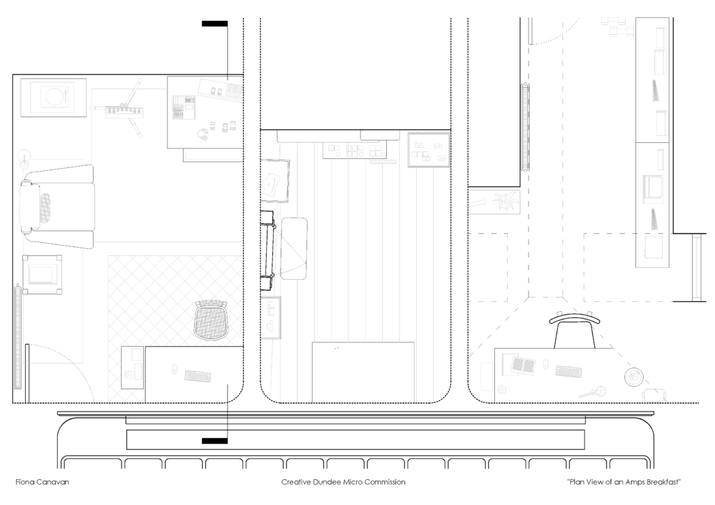
An architectural glance into Amps Breakfast spaces.

Celebrating the insights of icebreaker questions in a mini-zine.

A nutritious start to your day with a mid-century modern twist.

Capturing the shift into shared spaces that we experience online.

Blasting good vibes via a mash-up of signmaking methods.

Carving what (and where) connects us at Amps Breakfast.

Bananas, bagels, community and connection.

The intriguing discovery of an ancient creative collective.
This blog is one of several celebrating Two Years of Virtual Amps Breakfasts. Breakfast is a weekly opportunity that brings together supporters of Creative Dundee’s Amps network to chat and connect. New faces are always welcome—join Amps and come along!

If you would like to support us in creating even better content, please consider joining or supporting our Amps Community.